부산 동래 새힘 한의원
페이지 정보
작성자 최고관리자 작성일24-04-05 12:26 조회4,055회 댓글0건관련링크
-
http://한의원인테리어.com
1121회 연결
본문
부산 동래 수안시장에 위치한 새힘한의원 인테리어 공사 내용입니다
시장 부근이라 노후된 건물에 공사를 하려다 보니 완공 후 생길 수 있는 여러 하자 부분에 신경이 많이 쓰였습니다
특히 노후된 배관을 믿을 수 없고 그렇다고 새 배관으로 교체를 하고 싶어도 저희 현장은 2층이고 1층은 올리버영 영업을 하고 있는 상태라서요
그렇다면 할 수 있는건 살아 있는 배관을 찾아서 물을 부어 보고 1층에 양해를 구해 1층 천정을 열어서 제 눈으로 확인을 하는게 걱정을 좀 덜 수 있는 방법이죠
배수관을 찾아서 임시로 수도관을 만들어 계속 물을 흘려 본 결과 탕전실 배관이 헐겁게 연결되어 누수를 확인하고 보수하여 공사를 진행합니다
제가 작업하지 않은 부분은 일단 의심 먼저 하고 물을 걸어보던 두드려 보던 만져보던 어떻게던 제 눈으로 확인을 하고 다음 공정으로 넘어 갑니다
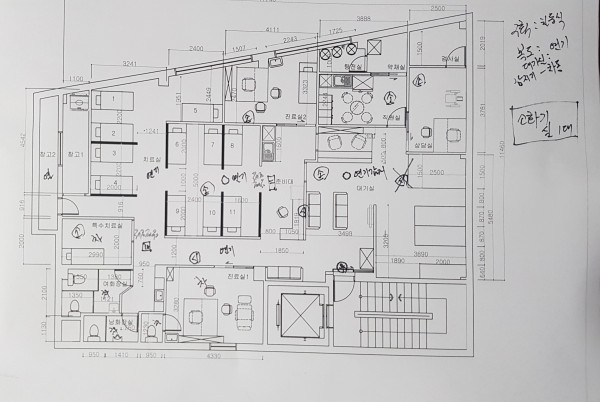
안전이 확인된 배관을 위주로 도면을 완성하고 관활 소방서 의료기관개설허가 담당을 찾아 가서 소방설비및 소방전기에 관한 증설및 신설을 질의하여 도면에 표기하고
이 도면을 바탕으로 공사를 진행합니다
도배까지 마감된 상태에서 소방서에서 나와 이것 저것 지적을 당하면 참으로 곤란한 상황이 됩니다
물론 소방업체에다 소방공사는 위탁을 하지만 소방업체에서 해석하는 소방법과 소방서 담당이 해석하는 소방법이 지역마다 담당자마다 다 다릅니다
그 사실을 몇번을 경험하다 보니 그 지역 소방 담당을 만나서 직접 대면하면 나중에 생길 수 있는 곤란한 상황을 피해 갈 수 있습니다
도면이 완성되면 바닥에 테이핑을 하여 각실에 공간이 적합한지를 직접 체험해 봅니다
보통은 이 과정에서 많은 수정 사항들이 나옵니다
도면으로 볼때와 실제 바닥에 테이핑으로 눈으로 실감하는 공간은 상이할 수 있단게 여기서 표가 나죠
이 상태로 불편해서 어떻게 사용했을까.....
공사 전엔 변경이 가능하지만 완공 후엔 아무것도 할 수 없지요
원장님께서 과감한 결단을 하셔서 화장실까지 철거 합니다
공사를 하다보면 일이 늘었어면 늘었지 줄지는 않더군요
왼쪽 아래서 부터 시계방향으로 원장님화장실, 남화장실, 여화장실, 화장실통로, 파우더룸 입니다

이렇게 보시면 이해가 편하시겠죠..
배관작업이 마무리 되면 또 물을 걸어봅니다
배관 안쪽에 입수배관 볼밸브가 열려져 있는게 보입니다
![]()
배관 공사가 끝이 나면 천정을 치기 전에 속에 들어 가야 되는 공사 에어콘, 덕트 등 천정 속에 들어 가는 작업들을 합니다
그러고 나서 목작업을 합니다
그 시간안에 또 입수는 입수대로 배수는 배수대로 각 연결부위를 손으로 만져보고 눈으로 확인하고 물도 걸어보고 배관들이 다른 작업으로 감춰 질때 까지 계속 누수를 확인합니다
천정 에어콘 배관 공사
천정을 치기전 천정 속에 들어 가야 할 작업들을 진행합니다
에어콘 드레인도 자리 잡아서 미리 설치를 하고 외부로 나가야 되는 간판선 작업도 미리 해 놓습니다
화장실쪽 벽이라 혹시 모를 소음을 줄이기 위해 방음 공사를 합니다
전기 온수기가 달릴 자리는 이렇게 보강하여 잊어 먹지 않게 사진으로 위치를 파악해 놓습니다
필요치 않은 창은 단열 보강을 하여 결로를 미연에 방지합니다
이런 작업은 일을 하는 목수나 저나 서로 당연히 생각하면서 창을 막자고 하면 무엇으로 막을건지를 물어 보며 자재 수급을 요청합니다
보조 모니터 자리 보강
어디에 무엇이 달린다고 미리 말씀해 주시면 일을 하면서 두번 일을 하지 않고 속에다 보강을 하여 표기하여 사진으로 남겨 놓고 나중에 원하는 위치에 달아 드립니다
어디에다 무엇을 어떻게 달지를 미리 다 파악을 하시기는 힘든 일이죠
그때 그때 상황에 맞게 이미 작업한 공간이라도 도배 전이기에 상을 찾아서 표기하고 또 사진으로 남겨 놓습니다
어떻게던 원하시는 위치에 뭐던 달아 드립니다
가급적 공사 이후 하루나 이틀 정도는 시간을 내어 액자던 필요로 하시는 무엇이던 해결해 드리고 갈려고 노력합니다
바닥으로 가는 수평 배관 작업 마저도 안될때는 이처럼 펌핑모터를 사용하여 배관작업을 할 수 있습니다
정수필터 설치를 위한 그림
이 그림으로 필터 회사에 전화를 걸어 필요한 부속을 받아 설치 해 드렸습니다
저는 고객님과의 인연은 공사가 완공되고 나서 부터라고 모든 분들께 말씀드립니다
a/s 는 권리가 아니라 당연한 의무라 생각합니다
관리에 최선을 다해 신의를 얻고 싶고 그 신의 속에서 소개를 받는 또 하나의 인연으로 발전하고 싶습니다
긴글 끝까지 읽어 주셔서 대단히 감사합니다..
댓글목록
등록된 댓글이 없습니다.


